Section Views
Section Views
- Software: Onshape
- Project date: 31 March, 2025
Exercitationem repudiandae officiis neque suscipit
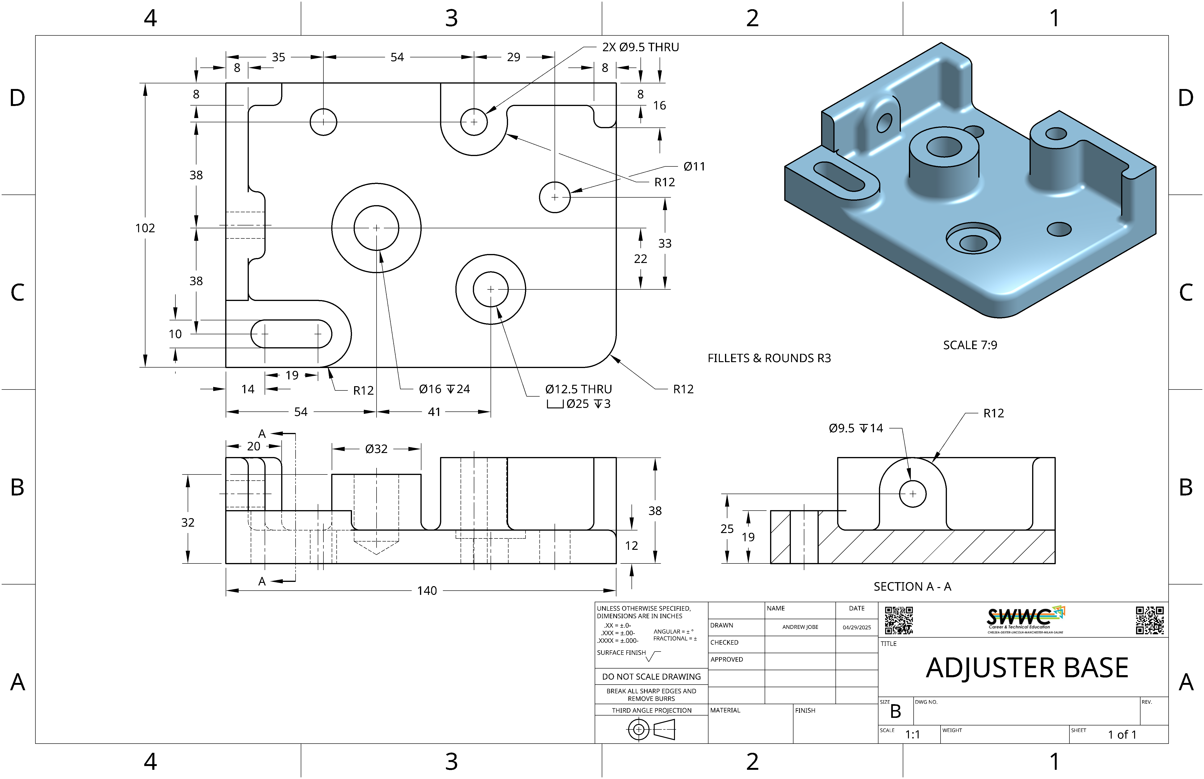
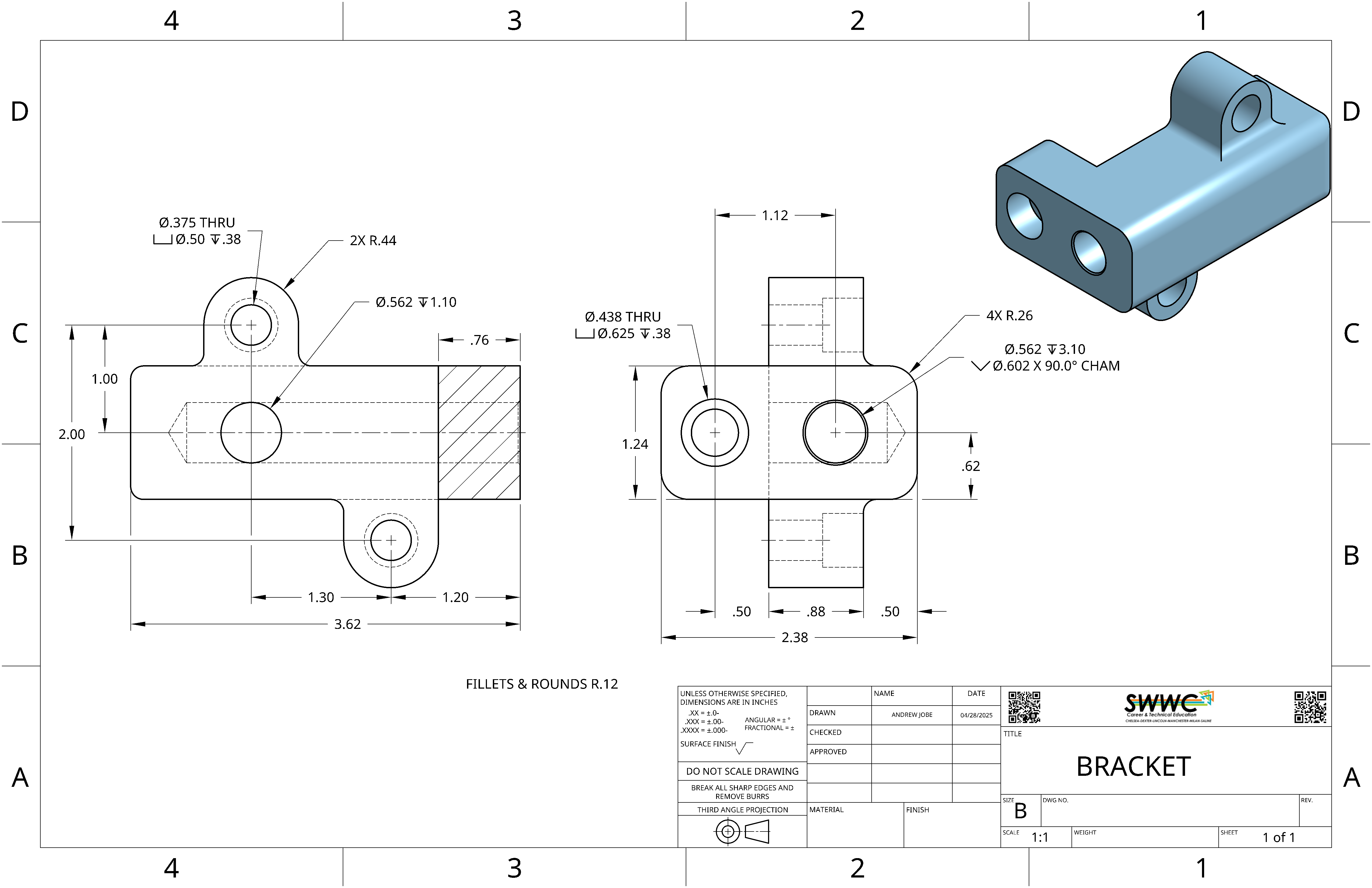
Section views are used to show inside features and avoid dimensioning to hidden lines.
Section views are used to show inside features and avoid dimensioning to hidden lines.